• Strategic land holding with high profile location
• Freehold only
• Vibrant city centre
• Strong presence on one of main corners in the City
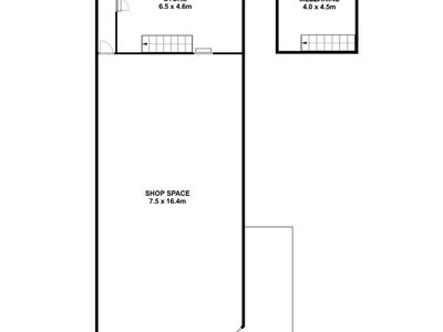
• Offering main floor area of approx. 176m2 plus amenities and mezzanine
• Zoned UAC – Urban Activity Centre
• In tightly held precinct with properties often retained for generations
• Currently leased to long term tenant
• Huge opportunity not to be missed
• Contact agents for further details
Further property information:
Zoning: Urban Activity Centre (UAC)
Council rates: $3,038.51 per annum
ESL: $393.85















































