Outstanding opportunity to lease a commercial shed in a highly sought after location
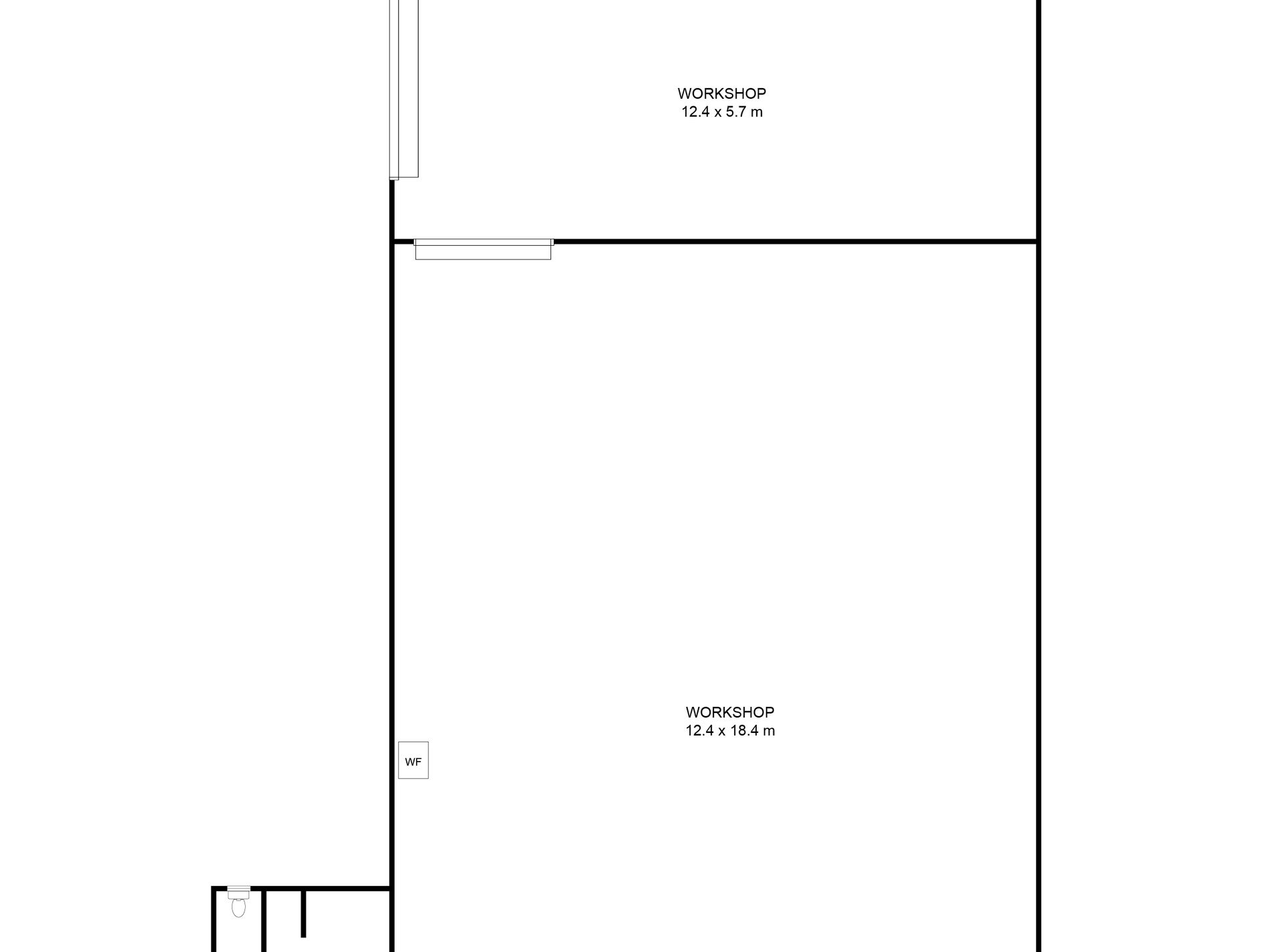
Spacious layout, high ceilings, multiple entry points including high clearance roller doors and 3 phase power outlets
Small office, storage and bathroom facilities
Ideal for warehousing, storage, distribution or trade- based businesses
Gated property on approx. 2551m2 with ample parking accessibility
Zoned – Employment - E



















