• An exciting opportunity not to be missed
• Community title allotment – ready to build
• Private setting – short distance from city centre
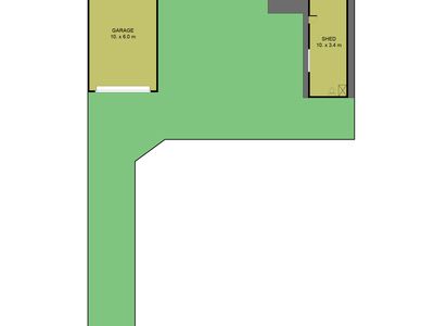
• Desirable existing shedding – main garage approx. 10m x 6m – concrete floor and power
• 2nd shed with concrete floor, power, shower and toilet – approx. 10m x 3.4m
• Upgraded power board, water and sewer connected
• House plans available – perfect location to build
• Handy for a tradesman – utilise shedding until you build
• Call your builder today – hard to find block with shedding
Land size: 486m2
Council rates: $1,326.20 per annum
SA Water supply $78.60 p/q
SA Sewer supply $86.95 p/q









