• A rare offering, beautifully maintained home, set on over 28 acres
• Just approx 6kms from Mount Gambier, elevated location overlooking Glenburnie Racecourse
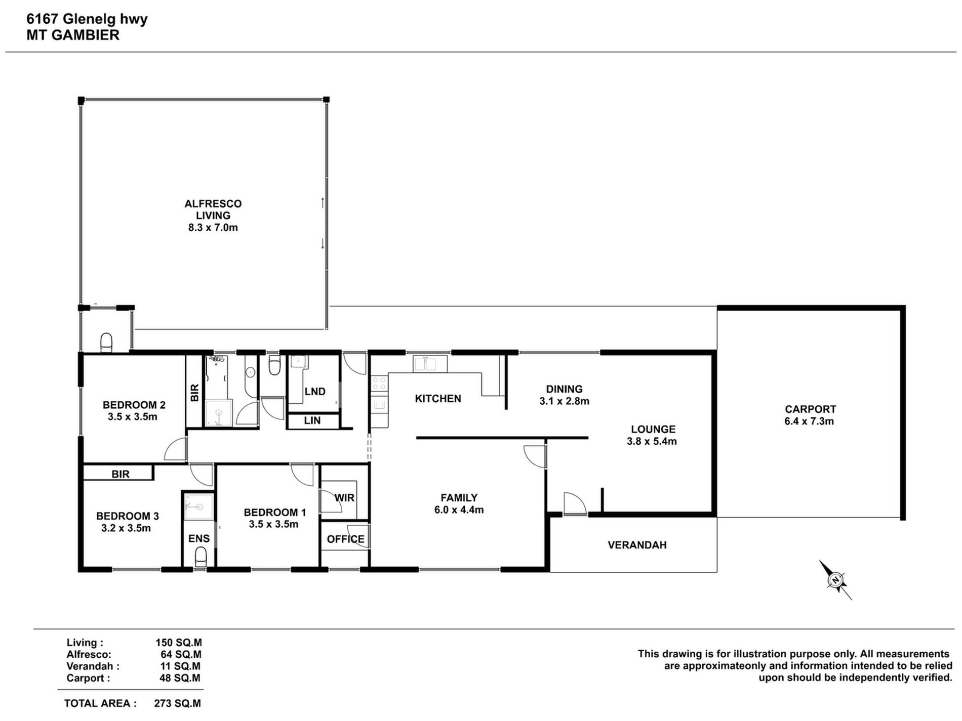
• Boasting three generous bedrooms + office. Master with ensuite & walk in robe, BIR’s in beds 2&3
• Light filled kitchen/dining/living area – kitchen with B.I pantry & dishwasher
• Spacious family room with slow combustion fire – heat shifter and amazing views
• Huge covered entertaining area overlooking lush rear yard
• High clearance implement shed, workshop and modern hay shed – double carport UMR
• Bore water, fruit trees, 8 paddocks
• Your own piece of paradise – productive land, cattle yards – short drive to city centre
• In conjunction with Key2sale
Further property information:
Land size: approx. 11.3 ha | 28.25 acres
Council: District Council of Grant
Council Rates: $1,946 p/a
Zoning: Ru – Rural
Built Year: 1970’s
Features
- Outdoor Entertainment Area
- Shed
- Built-in Wardrobes
- Dishwasher
- Study



















































