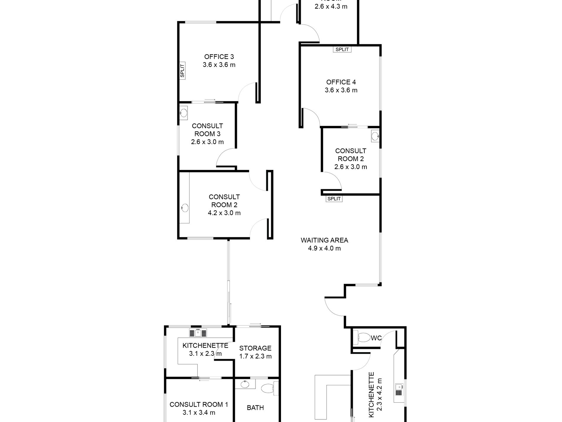
Versatile consulting rooms suitable for medical, allied health or professional services
Flexible layout including reception area, waiting rooms, treatment rooms and nurses station
Facilities include disable toilet access and staff kitchen
Ample storage spaces onsite
Approx. 270m2
Excellent location with easy access and great visibility
Free parking spaces conveniently located behind building
Don't delay inspect today!









